本文
登録No.191 【売買】 神岡町 平野部
印刷用ページを表示する
掲載日:2021年1月20日更新
ご利用にあたっての注意事項
・宅地建物取引業法の規定により、ご契約時に仲介業者へ仲介手数料の支払いが必要となります。手数料の額については仲介業者へお問い合わせください。
・市が提供する物件情報は一部分であり、物件の詳細情報等については、利用希望者ご自身がしっかり確認してから契約して下さい。
・市は必要に応じて情報提供や連絡調整を行いますが、物件に関する交渉、契約その他の仲介行為には関与せず、かつ一切の責任を負いません。
登録日 2021年1月20日
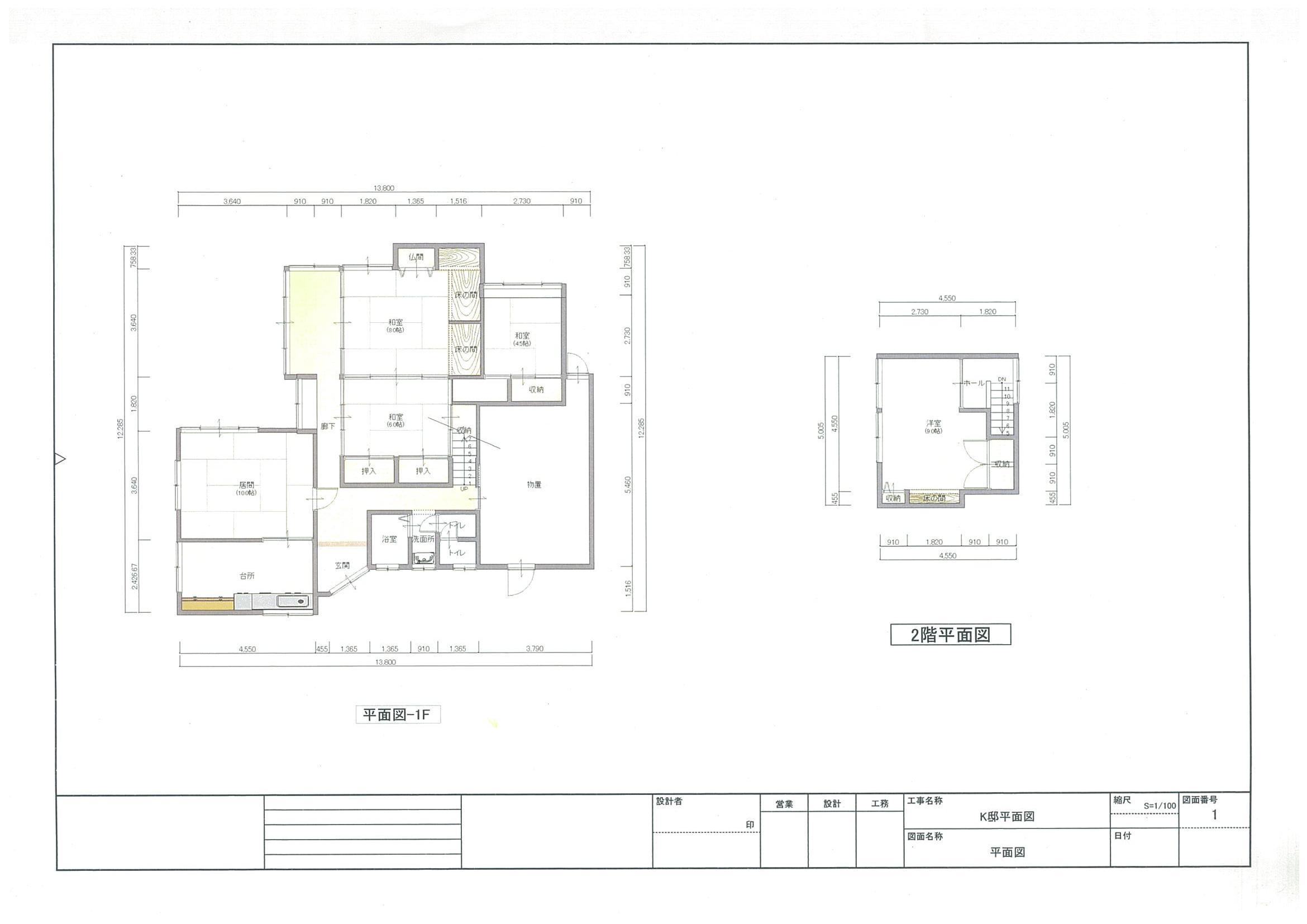
| 住所地 | 飛騨市 神岡町 釜崎799-1 |
| 価格 | 売買 250 万円 |
| 賃貸 - 円/月 敷金 - ヶ月 礼金 - ヶ月 |
| 構造 | 木造2階建 | 建築年 | 1952年(昭和27年) |
| 建物面積 | 116.62 | 敷地面積 | 275.59 |
| 建ぺい率 | 70% | 容積率 | 200% |
| 補修要否 | 多少の補修が必要 | 補修費用 | 入居者負担 |
| 電気 | 引き込み済 | 駐車場 | 無 |
| ガス | プロパン | 車庫 | 無 |
| 風呂 | 電気(温水器) | 庭 | 有(裏庭) |
| 水道 | 上水道 | 菜園 | 無 |
| 下水道 | 単独浄化槽 | 物置き | 有 |
| トイレ | 汲み取り(和式) | 町内会 | |
| テレビ受信 | 視聴区域 | ペット連れ | 可 |
| 駅 | 保育園 | 双葉保育園 約1.6km | |
| バス停 | 釜崎停留所 約300m | 小学校 | 神岡小学校 約1.4km |
| 市役所 | 神岡振興事務所 約1.8km | 中学校 | 神岡中学校 約1.5km |
| 病院 | 飛騨市民病院 約2.1km | 温泉 | 流葉温泉Mプラザ 約9km |
| 消防署 | 神岡消防署 約3.3km | 食料品店 | Aコープたかはら 約1.0km |
| 警察署 | 神岡警部交番 約1.7km | ホームセンター | コメリ・シメノドラッグ 神岡店 約1.6km |
| 金融機関 | JAひだ殿支店 約1.0km | コンビニ | デイリーヤマザキ 神岡本町店 約1.5km |
| 眺めの良い高台に位置し、広い庭があります。水廻りの改修等必要です。 |
地図の読み込みに関する問題が発生したとき<外部リンク>
その他内部写真




| 仲介業者 |
株式会社 奥野工務店 |
