本文
登録No.409 【売買】 古川町 市街地 450万円
印刷用ページを表示する
掲載日:2026年3月19日更新
ご利用にあたっての注意事項
・宅地建物取引業法の規定により、ご契約時に仲介業者へ仲介手数料の支払いが必要となります。手数料の額については仲介業者へお問い合わせください。
・市が提供する物件情報は一部分であり、物件の詳細情報等については、利用希望者ご自身がしっかり確認してから契約して下さい。
・市は必要に応じて情報提供や連絡調整を行いますが、物件に関する交渉、契約その他の仲介行為には関与せず、かつ一切の責任を負いません。
登録日 2026年3月19日
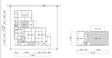
| 住所地 | 飛騨市古川町上気多2215番33 |
| 価格 | 450万円 |
|
賃貸 - 円/月 |
|
構造 |
木造 | 建築年 | 1993年(平成5年) |
| 建物面積(平方メートル) | 80 | 敷地面積(平方メートル) | 121.59 |
| 建ぺい率 | 70% | 容積率 | 200% |
| 補修要否 | 不要 | 補修費用 |
| 電気 | 引き込み済 | 駐車場 | 有(2台分) |
| ガス | プロパン | 車庫 | 無 |
| 風呂 | 灯油 | 庭 | 有 |
| 水道 | 上水道 | 菜園 | 無 |
| 下水道 | 下水道、浄化槽 | 物置き | 有 |
| トイレ | 水洗 | 町内会 | 24区 |
| テレビ受信 | ペット連れ | 可 |
| 駅 | JR高山線 飛騨古川駅 約1.2km | 保育園 | 宮城保育園 約2.0 km |
| バス停 | 吉城高校口 約0.4km | 小学校 | 古川小学校 約1.4km |
| 市役所 | 飛騨市役所本庁 約1.0km | 中学校 | 古川中学校 約2.6km |
| 病院 | 古川病院 約1.5km | 温泉 | 飛騨古川桃源郷温泉 ぬく森の湯すぱ~ふる 約10.0km |
| 消防署 | 古川消防署 約2.0km | 食料品店 | ママショップうえの 約1.5km |
| 警察署 | 飛騨警察署 約1.9km | ホームセンター | ジャンボあらき古川店 約2.6km |
| 金融機関 | 飛騨農協 古川支店 約1.2km | コンビニ | ファミリーマート 飛騨古川新栄店 約1.3km |
|
|
地図の読み込みに関する問題が発生したとき<外部リンク>
その他内部写真
| 株式会社 匠和組 飛騨市古川町末広町1-15 電話番号 0577-73-2222 ファクス番号 0577-73-2232 http://shouwagumi.com/<外部リンク> |









