本文
登録No.408 【売買】 神岡町 市街地 120万円
印刷用ページを表示する
掲載日:2026年3月13日更新
ご利用にあたっての注意事項
・宅地建物取引業法の規定により、ご契約時に仲介業者へ仲介手数料の支払いが必要となります。手数料の額については仲介業者へお問い合わせください。
・市が提供する物件情報は一部分であり、物件の詳細情報等については、利用希望者ご自身がしっかり確認してから契約して下さい。
・市は必要に応じて情報提供や連絡調整を行いますが、物件に関する交渉、契約その他の仲介行為には関与せず、かつ一切の責任を負いません。
登録日 2026年3月13日
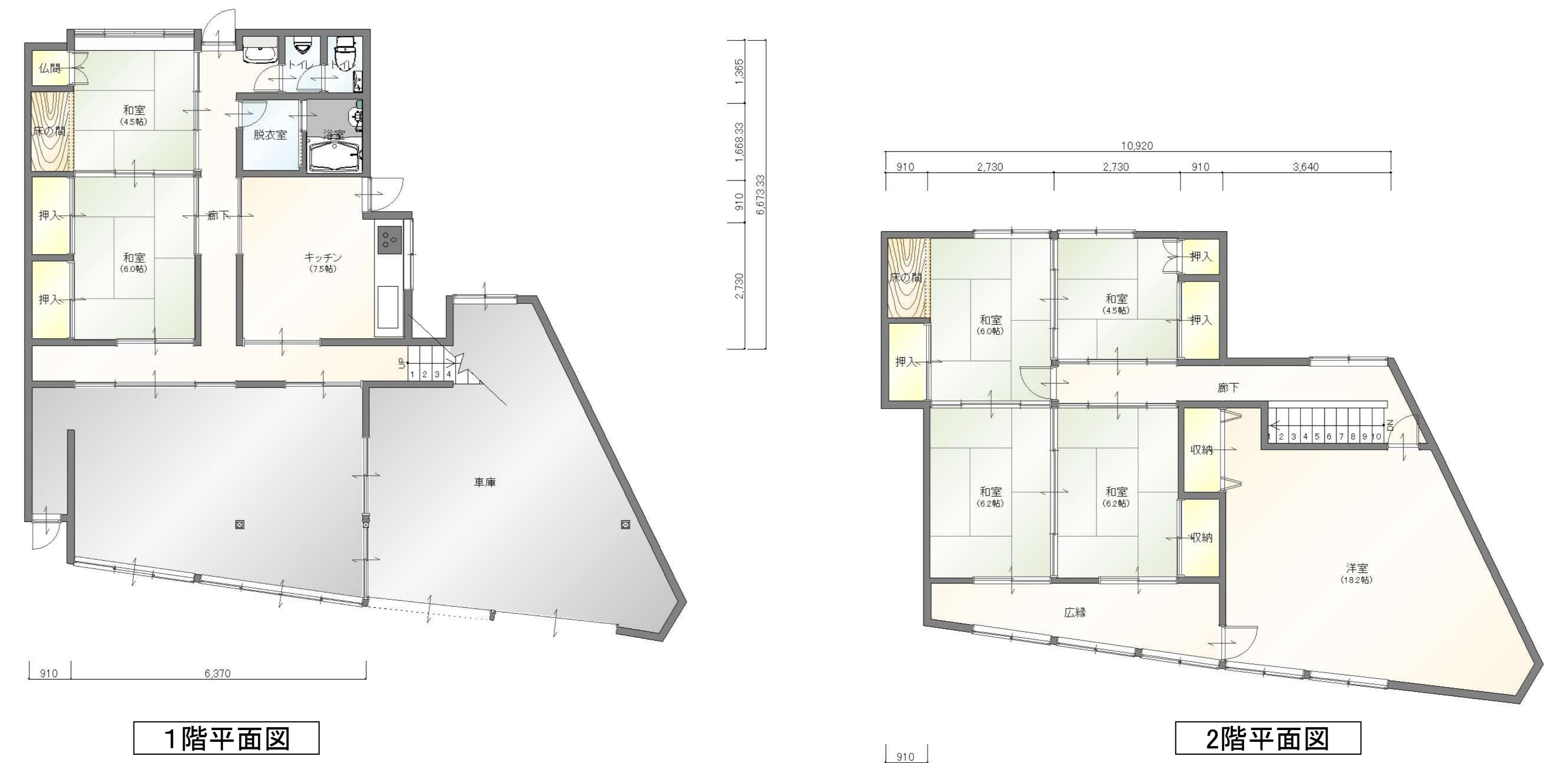
| 住所地 | 飛騨市 神岡町 緑ヶ丘6-2 |
| 価格 | 売買 120 万円 |
|
賃貸 - 円/月 |
|
構造 |
木造 | 建築年 | 昭和41年(1966年) |
| 建物面積(平方メートル) | 215.45 | 敷地面積(平方メートル) | 173.22 |
| 建ぺい率 | 70% | 容積率 | 200% |
| 補修要否 | 多少の補修が必要 | 補修費用 | 入居者・買い主負担 |
| 電気 | 引き込み済 | 駐車場 | 無 |
| ガス | プロパン | 車庫 | 有(2台分) |
| 風呂 | ガス | 庭 | 有 |
| 水道 | 上水道 | 菜園 | 無 |
| 下水道 | 浄化槽 | 物置き | 無 |
| トイレ | 水洗(洋式) | 町内会 | |
| テレビ受信 | ペット連れ | 可 |
| 駅 | 保育園 | 神岡こども園 約1.4km | |
| バス停 | 釜崎公民館前 約0.3km | 小学校 | 神岡小学校 約1.2km |
| 市役所 | 神岡振興事務所 約2.0km | 中学校 | 神岡中学校 約1.3km |
| 病院 | 飛騨市民病院 約2.0km | 温泉 | 割石温泉 約6.6km 流葉温泉Mプラザ 約8.9km |
| 消防署 | 神岡消防署 約2.3km | 食料品店 | スーパーバロー 約2.0km |
| 警察署 | 飛騨警察署 神岡警部交番 約1.8km | ホームセンター | コメリ 約1.4km |
| 金融機関 | 神岡郵便局 約1.6km | コンビニ | デイリーヤマザキ 神岡殿町店 約1.4km |
|
飛騨市神岡町緑ヶ丘の静かな住宅地にある中古住宅です。ゆとりある木造住宅で、部屋数も多く広々とした住まいです。神岡振興事務所や病院、スーパーなど生活施設もおおむね2km圏内にあり、生活利便性も良好です。売却価格120万円と大変魅力的な価格で、田舎暮らし・移住・セカンドライフ・など幅広くご検討いただけます。 |
地図の読み込みに関する問題が発生したとき<外部リンク>
| 株式会社 奥野工務店 飛騨市神岡町釜崎825-1 電話番号 0578-82-0709 ファクス番号 0578-82-0816 http://okunokomuten.jp/<外部リンク> |



















