本文
登録No.411 【売買】 河合町 山間部 150万円
印刷用ページを表示する
掲載日:2026年4月14日更新
ご利用にあたっての注意事項
・宅地建物取引業法の規定により、ご契約時に仲介業者へ仲介手数料の支払いが必要となります。手数料の額については仲介業者へお問い合わせください。
・市が提供する物件情報は一部分であり、物件の詳細情報等については、利用希望者ご自身がしっかり確認してから契約して下さい。
・市は必要に応じて情報提供や連絡調整を行いますが、物件に関する交渉、契約その他の仲介行為には関与せず、かつ一切の責任を負いません。
登録日 2026年4月14日
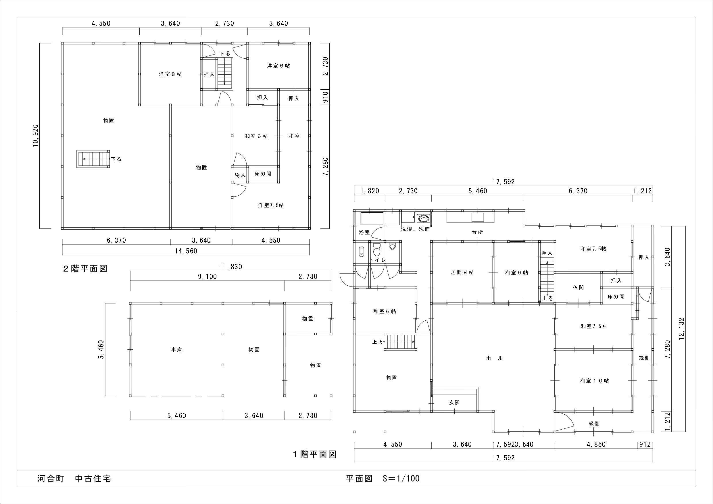
| 住所地 | 飛騨市河合町有家145 |
| 価格 | 150万 |
|
賃貸 - 円/月 |
|
構造 |
木造 | 建築年 | 大正12年(1923年) |
| 建物面積(平方メートル) | 376.00 | 敷地面積(平方メートル) | 708.00 |
| 建ぺい率 | 70% | 容積率 | 200% |
| 補修要否 | 多少の補修が必要 | 補修費用 | 入居者負担 |
| 電気 | 引き込み済 | 駐車場 | 有 |
| ガス | プロパン | 車庫 | 有 |
| 風呂 | 薪 | 庭 | 有 |
| 水道 | 上水道 | 菜園 | 有 |
| 下水道 | 浄化槽 | 物置き | 有 |
| トイレ | 水洗(洋式) | 町内会 | |
| テレビ受信 | ペット連れ | 可 |
| 駅 | JR高山線角川駅 約2.8km | 保育園 | 河合保育園 約1.5km |
| バス停 | ひだまる 有家口 約0.2km | 小学校 | 河合小学校 約3.0km |
| 市役所 | 河合振興事務所 約1.5km | 中学校 | 古川中学校 約17.0km |
| 病院 | 河合診療所 約1.2km | 温泉 | ゆぅわ~くはうす 約1.2km |
| 消防署 | 古川消防署北分署 約8.8km | 食料品店 | 薮下商店 約1.5km |
| 警察署 | 河合駐在所 約1.5km | ホームセンター | ジャンボあらき古川店 約20.0km |
| 金融機関 | 飛騨河合郵便局 約1.5km | コンビニ | ファミリーマート飛騨古川店 約16.0km |
|
敷地内に畑あり。(604平方メートル) |
地図の読み込みに関する問題が発生したとき<外部リンク>
| 株式会社 匠和組 飛騨市古川町末広町1-15 電話番号 0577-73-2222 ファクス番号 0577-73-2232 <外部リンク> http://shouwagumi.com/<外部リンク> |







